💳 Hoogste welkomstbonus ooit! Vraag nu de Gold Card aan (70.000 punten) of de Platinum Card (170.000 punten) — tijdelijke actie t/m 3 maart.

Dunavox Flow 45 Wijnkoelkast RVS — strak design, slimme bediening

Dunavox Flow 45 Wijnkoelkast RVS — strak design, slimme bediening

De Dunavox Flow 45 combineert een luxe uitstraling met praktische functies: greeploos Push2Open, twee temperatuurzones en digitale bedieningen maken het een moderne wijnklimaatkast voor zowel thuisgebruik als kleinere horeca-toepassingen. De fullglass deur met RVS kader en blauwe LED-verlichting biedt een stijlvolle presentatie van je collectie, terwijl soft-close en houten leggers voor een verfijnde bediening en bescherming van je flessen zorgen. Dankzij de nismaat van 60 cm en de mogelijkheid voor vrijstaand of onderbouw gebruik past deze kast in veel keukens. De diepte van de plint maakt het mogelijk om een eigen keukenplint te plaatsen, wat integratie in maatwerk keukens vergemakkelijkt. Al met al is de Flow 45 geschikt voor wie een compacte, maar karaktervolle wijnoplossing zoekt met moderne bediening en een verzorgde uitstraling.

De belangrijkste kenmerken

Goed om rekening mee te houden voordat je een aankoop doet.

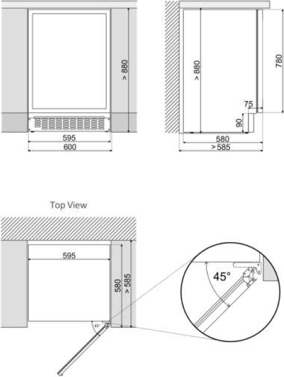
Afmetingen (H x B x D) 88 x 59,5 x 57,7 cm
Nismaat 60 cm (geschikt voor inbouw onder werkblad)
Temperatuurzones 2 zones, beide regelbaar 5–20 °C, digitale bediening
Deur en kader Fullglass deur met RVS kader, greeploos Push2Open
Interieur Houten leggers, blauwe LED-verlichting
Speciale functies Soft-close, diepe plint voor eigen keukenplint

De Dunavox Flow 45 Wijnkoelkast RVS 88 cm in één oogopslag

De Dunavox Flow 45 Wijnkoelkast RVS 88 cm in één oogopslag

De Dunavox Flow 45 Wijnkoelkast RVS is ontworpen voor gebruikers die naast functionaliteit ook belang hechten aan esthetiek. Het apparaat is 88 cm hoog, 59,5 cm breed en 57,7 cm diep en is geschikt voor zowel vrijstaand gebruik als voor inbouw onder een werkblad met een nismaat van 60 cm. De kast heeft twee temperatuurzones, elk regelbaar tussen 5 en 20 °C via digitale bediening, waardoor zowel witte en roséwijnen als rode wijnen op hun ideale serveertemperatuur bewaard kunnen worden. De fullglass deur met RVS kader en blauwe LED-verlichting geeft een aantrekkelijke presentatie van je flessen en past goed in moderne keukens, kantoorruimtes of kleinere bars.

Opvallende gebruikskenmerken zijn de greeploze Push2Open-technologie en de soft-close functie: een zachte druk op de deur activeert een mechanische arm die de deur opent, en een automatische sluitfunctie zorgt dat de deur niet hard dichtvalt. Houten leggers bieden een klassieke uitstraling en dempen trillingen, wat gunstig is voor de rijping en rust van wijnen. De kast heeft een zwarte metalen behuizing die relatief onderhoudsvriendelijk is. De diepe plint maakt het mogelijk om een eigen keukenplint te monteren zodat het geheel naadloos aansluit op maatwerk keukens.

In praktische zin is de Dunavox Flow 45 ideaal voor gebruikers met een bescheiden tot middelgrote collectie die waarde hechten aan presentatie en bediening. Hoewel de kast qua capaciteit niet bedoeld is voor grote collecties of professionele opslag, biedt hij voldoende flexibiliteit en betrouwbaarheid voor dagelijks gebruik. Belangrijke aandachtspunten voor plaatsing zijn de diepte en ventilatieruimte, en het ontbreken van expliciete specificaties over geluidsniveau en exacte flescapaciteit — zaken om bij aankoop te verifiëren.

Wat vinden we goed aan de Dunavox Flow 45 Wijnkoelkast RVS 88 cm

Wat vinden we goed aan de Dunavox Flow 45 Wijnkoelkast RVS 88 cm

Wat meteen opvalt aan de Dunavox Flow 45 is de combinatie van vorm en functie. De greeploze Push2Open-technologie oogt zeer modern en maakt de bediening eenvoudig en elegant: een lichte druk op de deur is voldoende om deze te openen, zonder zichtbare handgreep die de strakke lijn van het front doorbreekt. Deze techniek sluit na zeven seconden automatisch als de deur niet volledig wordt geopend, wat veilig en gebruiksvriendelijk is. De soft-close functie voorkomt hard dichtslaan, wat zowel het materiaal beschermt als trillingen minimaliseert.

De aanwezigheid van twee onafhankelijke temperatuurzones is een groot pluspunt. Je kunt in één kast zowel witte als rode wijnen op optimale serveertemperaturen bewaren, elk geregeld met digitale controles boven en onder. Dit maakt de Flow 45 veelzijdig voor diverse wijnen en dagelijkse serveerbehoeften. Houten leggers geven een hoogwaardige uitstraling en zorgen tegelijkertijd voor zachte ondersteuning van de flessen — ze dempen beweging en zijn vriendelijk voor etiketten en kurken.

Het uiterlijk is een sterke troef: de fullglass deur met RVS kader en blauwe LED-verlichting presenteert de collectie op een stijlvolle manier. De kast werkt prima in moderne en strakke interieurs, maar kan ook contrasteren in landelijke keukens dankzij de houten leggers en RVS accenten. Verder is de kast relatief onderhoudsarm dankzij de zwarte metalen behuizing en het eenvoudige interieur. Voor wie zoekt naar een compacte, visueel aansprekende wijnoplossing met goede temperatuurscontrole en slimme bediening, levert de Dunavox Flow 45 veel waar voor z'n geld.

Wat vinden we minder goed

Wat vinden we minder goed

Hoewel de Dunavox Flow 45 veel sterke punten heeft, zijn er ook enkele beperkingen die potentiële kopers moeten overwegen. Allereerst geeft de fabrikant geen expliciete flescapaciteit in de productbeschrijving; dat maakt het lastig om te vergelijken met andere modellen als je exacte opslagbehoefte hebt. Voor verzamelaars met een grote collectie is deze kast waarschijnlijk te beperkt. Daarnaast is de diepte van 57,7 cm en de hoogte van 88 cm iets om goed mee te nemen bij inbouw: je moet rekenen op voldoende ventilatie en ruimte om de deur volledig te openen, zeker in kasten of tussen muren.

De Push2Open-technologie is elegant, maar introduceert ook mechanische componenten die na verloop van tijd onderhoud of kalibratie kunnen vragen, vooral in intensief gebruik. Als je kiest voor hard gebruik in een commerciële omgeving, kan dit een aandachtspunt zijn. Verder ontbreken gedetailleerde technische specificaties zoals geluidsniveau (dB), energieverbruik en vochtigheidsregeling — informatie die belangrijk is als je gevoelig bent voor achtergrondgeluid of optimaal bewaarklimaat. Ten slotte is de uitstraling zeer modern; dat is niet voor iedere smaak geschikt, en in sommige klassieke interieurs kan de fullglass deur met blauw licht als te 'koel' worden ervaren.

Voor- en nadelen

Voordelen
  • Greeploze Push2Open-technologie voor elegante en gebruiksvriendelijke bediening
  • Twee onafhankelijke temperatuurzones (5–20 °C) met digitale regeling
  • Fullglass deur met RVS kader en blauwe LED-verlichting voor mooie presentatie
  • Houten leggers die trillingen dempen en een premium uitstraling geven
  • Soft-close mechanisme en onderhoudsarme zwarte metalen behuizing
Nadelen
  • Exacte flescapaciteit niet gespecificeerd, mogelijk beperkt voor grote collecties
  • Mechanische Push2Open-componenten kunnen op lange termijn onderhoud vereisen
  • Ontbreken van gedetailleerde data over geluid en energieverbruik

Advies voor kopers

Advies voor kopers

Bij het overwegen van de Dunavox Flow 45 is het belangrijk eerst je eigen gebruiksscenario en ruimte te beoordelen. Bepaal hoeveel flessen je daadwerkelijk wilt opslaan en of je vaker meerdere stijlen wijn tegelijk wilt bewaren — de twee temperatuurzones zijn een groot pluspunt voor huishoudens die zowel witte als rode wijn willen serveren, maar omdat de fabrikant geen exacte capaciteit vermeldt, raad ik aan vooraf het interieur op te meten of de dealer te vragen naar het maximale aantal standaard flessen dat past.

Controleer bij inbouw de beschikbare diepte en ventilatie: met een diepte van 57,7 cm en de mogelijkheid om een eigen keukenplint te plaatsen, is integratie goed mogelijk, maar houd rekening met voldoende ruimte achter en boven het toestel voor luchtcirculatie. Voor een strakke inbouw in kasten is de nismaat van 60 cm cruciaal; meet zorgvuldig want een onjuiste afmeting kan montageproblemen geven. Als je in een open keuken werkt, denk ook aan de draairuimte van de deur en de plaatsing van omliggende kasten of apparaten.

Let op je geluidsgevoeligheid. Omdat er geen specificatie voor geluidsniveau is gegeven, vraag bij de verkoper naar het gemeten decibelniveau of lees ervaringen van andere gebruikers. Als je de kast in een lounge of slaapkamer naast een woonruimte plaatst, kan het geluidsniveau belangrijk zijn. Voor intensief of commercieel gebruik is het aan te raden de duurzaamheid van de Push2Open-mechaniek en het condensatiebeheer te bespreken met de leverancier. Tot slot: profiteer van de houten leggers en LED-presentatie, maar wees voorzichtig met temperatuurfluctuaties door veelvuldig openen — plaats geliefde flessen voor dagelijks gebruik in de boven- of onderste zone afhankelijk van serveertemperatuur en laat andere flessen minder vaak verstoord rusten.

Conclusie

Conclusie

De Dunavox Flow 45 Wijnkoelkast RVS is een aantrekkelijke keuze voor wie een compacte, stijlvolle en moderne wijnklimaatkast zoekt met slimme bediening en dubbele temperatuurbewaking. De combinatie van Push2Open-technologie, soft-close, digitale instelmogelijkheden en houten leggers maakt het product overzichtelijk in gebruik en visueel aantrekkelijk op de lange termijn. Voor huishoudens die op zoek zijn naar een representatieve kast voor dagelijks gebruik en geserveerde wijnen biedt de Flow 45 veel praktische voordelen.

Er zijn echter ook duidelijke grenzen: de onbekende exacte flescapaciteit, het ontbreken van details over energieverbruik en geluidsniveau, en de mechanische elementen van de greeploze technologie vereisen dat potentiële kopers hun situatie goed evalueren. Voor verzamelaars met grotere collecties of voor intensief commercieel gebruik zijn wellicht zwaardere of grotere modellen meer geschikt. Voor de gemiddelde consument die waarde hecht aan esthetiek, serveerflexibiliteit en eenvoudige bediening, is de Dunavox Flow 45 een sterke kandidaat.

Samenvattend: koop de Flow 45 als je prioriteit geeft aan design, presentatie en het gemak van twee temperatuurzones in een compacte kast. Controleer bij aankoop de praktische details zoals inbouwmaten, ventilatie en geluidsniveau, en vraag bij twijfel naar aanvullende specificaties of een demonstratie. Dan haal je een elegante en functionele wijnkoelkast in huis die in veel moderne interieurs uitstekend tot z'n recht komt.

Sanne

Sanne

Laatst bijgewerkt: 27-11-2025

Sanne is een gepassioneerde expert in wijnkoelkasten en vaste auteur bij Beste Wijnkoelkast. Met een achtergrond als productspecialist huishoudapparatuur en WSET Level 2 in wijnkunde test en vergelijkt ze sinds 2017 modellen op temperatuurstabiliteit, geluidsniveau en gebruiksgemak. Ze gelooft dat een goede wijnkoelkast draait om rust, constante vochtigheid en slimme indeling. Thuis beheert ze een compacte collectie witte wijnen en pinot noir. In haar vrije tijd kookt ze graag voor vrienden en experimenteert ze met wijn-spijscombinaties.

Dunavox Flow 45 Wijnkoelkast RVS 88 cm

€3.399,00
Reviews op bol
Uiterlijk 10 maart in huis

Klaar om te beginnen?
Ontdek alle wijnkoelkasten nu.

Vergelijken